Código 106089-OT / Sala Comercial com 64m² no bairro Chácara das Pedras em Porto Alegre para Comprar
Orientta Imóveis - Imobiliária em Porto Alegre
Orientta Imóveis WHATSAPP LIGAR
CÓDIGO 106089-OT

Sala Comercial com 64m² no bairro Chácara das Pedras em Porto Alegre para Comprar



Excelente oportunidade para investidores: sala comercial já locada, com retorno garantido!

Localizada no 2º andar, esta sala comercial possui 64,31m² privativos, resultado da junção de duas unidades, o que proporciona um layout otimizado e funcional. Conta com duas vagas de garagem cobertas e está atualmente locada, garantindo rendimento desde o primeiro dia.
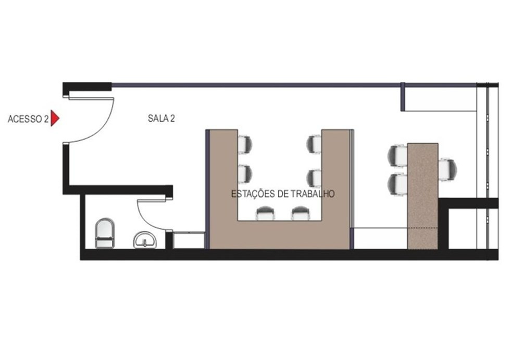
Se o novo proprietário preferir duas salas independentes, como constam nas matrículas, a alteração é simples e pode ser facilmente realizada. As imagens finais do anúncio ilustram essa possibilidade (plantas baixas e perspectivas).

Os ambientes da sala comercial estão impecáveis, com projeto assinado por arquitetas, marcenaria sob medida, forro, luminárias, acabamentos de qualidade e quatro aparelhos de ar-condicionado tipo split já instalados. A sala é voltada para a frente do edifício, com orientação leste, recebendo sol pela manhã.

O layout atual inclui: recepção, copa, lavabo, estações de trabalho, dois escritórios, sala de reuniões e depósito com acesso direto pela circulação do prédio.

O edifício apresenta arquitetura corporativa, portaria com controle de acesso por cartão, elevador e rampa de acesso.

Ideal para consultórios, clínicas ou escritórios em geral, com grande facilidade de adaptação. As proprietárias, que são arquitetas, colocam-se à disposição para desenvolver um novo layout personalizado, com proposta em 3D, conforme a necessidade do comprador.

Invista em um imóvel pronto, bem localizado e com geração de renda desde já. Agende sua visita! Preço e disponibilidade do imóvel sujeitos a alteração sem aviso prévio.
Avenida Teixeira Mendes, Chácara das Pedras, Porto Alegre, RS
Orientta Imóveis - Imobiliária em Porto Alegre
Orientta Imóveis WHATSAPP LIGAR
WhatsApp